Autómentes nap, hétvégi piknik, forgalomkorlátozások
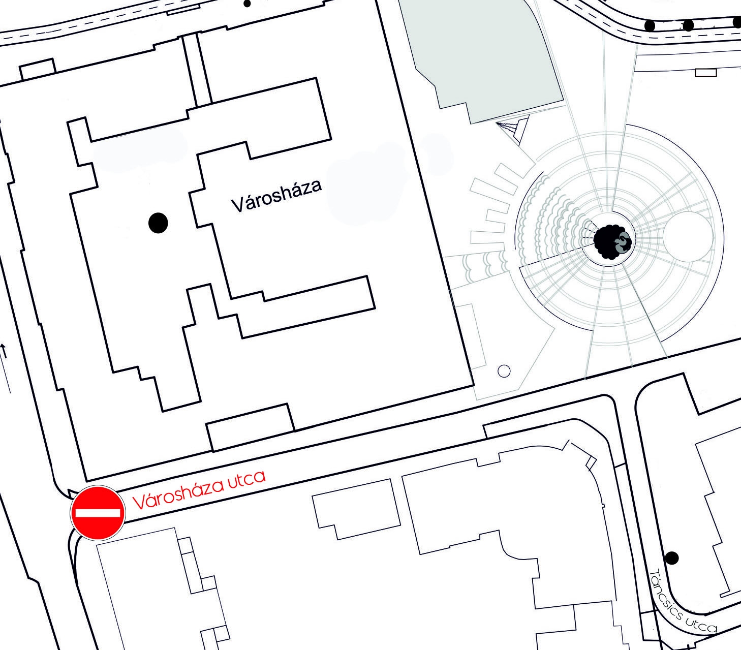
Autómentessé alakul át Kiskunhalas főtere csütörtök reggeltől. Ez egyúttal azt is jelenti, hogy autóval nem lehet majd behajtani kora délutánig a Városháza utcába. A Táncsics utca zsákutca lesz, mert csak a Sétáló utcáig lehet behajtani rajta. Péntek délutántól szombat késő estig pedig Halas Piknik lesz a főtéren és a díszudvarban, így ezeken a napokon is forgalomkorlátozás lesz a főtér környékén.
Szeptember 22-én reggel 6 órától kezdődik az Autómenetes nap miatti forgalomkorlátozás a belvárosban. A Városháza utcába csütörtöktől nem lehet behajtani az Autómenetes napon történő főtéri rendezvények miatt. Ezen időszakban a Táncsics utca zsákutcaként üzemel, amit elsősorban az ott lakók és az üzletek tulajdonosai használnak majd. A Táncsics utcából nem tudnak autóval a Városháza utcába menni a közlekedők, mert a Sétáló utcán kordonnal zárják az utat. A csütörtöki útzárak közül a Táncsics utcai koradélutántól felszabadul.
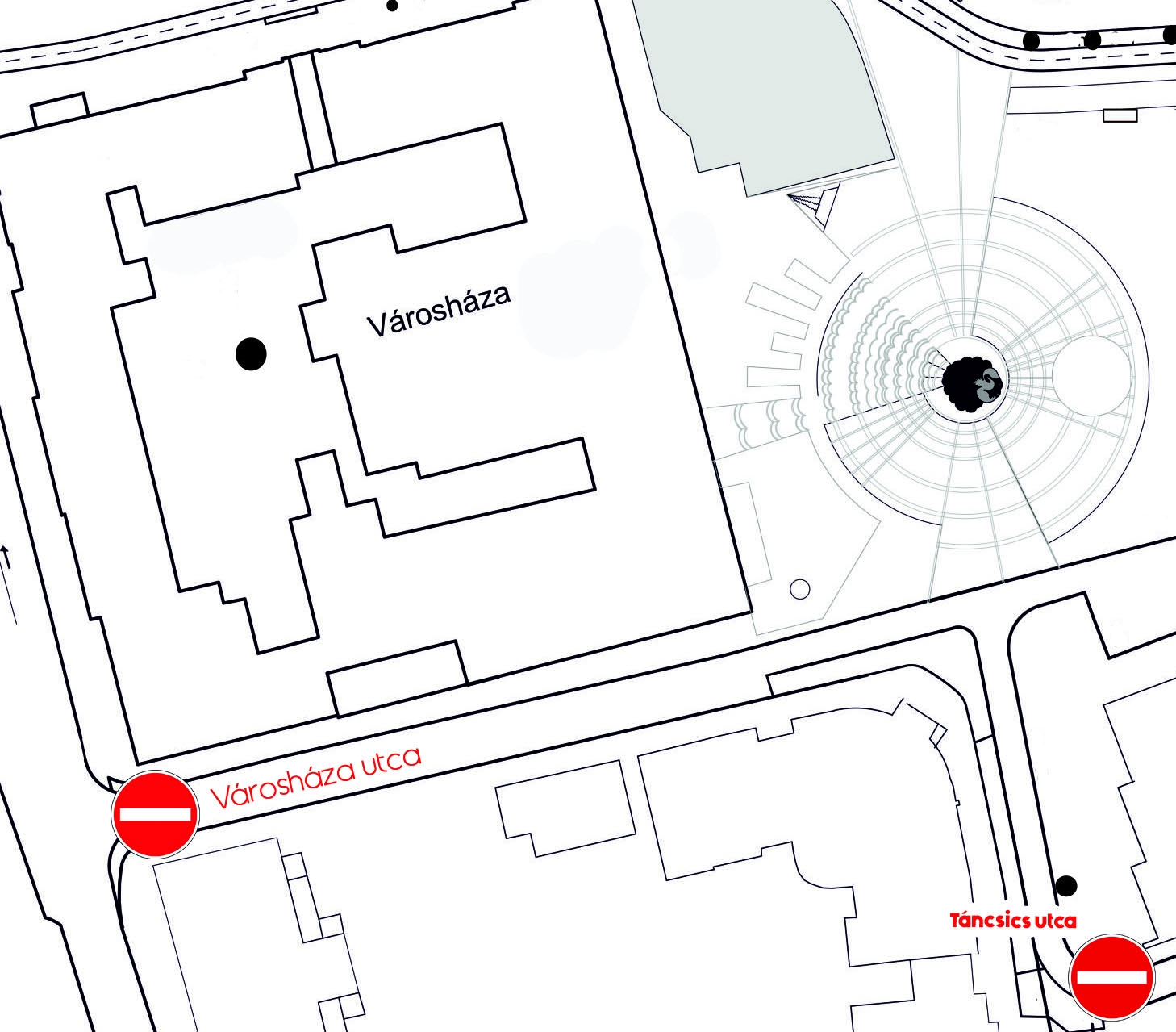
Pénteken és szombaton az elmaradt augusztus 20-i rendezvények pótlása céljából szervezi meg a Halas Pikniket a Halasi Média és Kultúra Nonprofit Kft.. A Városháza utca a Kereskedelmi Bankig ezen időszak alatt le lesz zárva, a Táncsics utcáról azonban be lehet majd hajtani a Városháza utca Spar felőli szakaszára. Az útzár fenntartására vasárnap reggel 6-ig van engedélye a szervezőknek, de amint vége a rendezvénynek igyekeznek minél előbb visszaállítani az eredeti állapotot és az útzárakat megszüntetik. A rendezvények ideje alatt óvatos közlekedést kérnek a szervezők a környékben!
A Halasi Piknik tervezett programjai:
Péntek:
18:00 - Halas Concert Band
19:30 - Tremolo koncert
20:30 - DANICS DÓRA koncert
21:30 - GYPO CIRCUS koncert
23:00 - Mandisco Dj Team
Szombat:
15:00 - Családi nap gyermekprogramokkal, fellépőkkel
19:00 - Mamma mia filmvetítés
22:00 - Dj. Gyuszi retro disco
Minden érdeklődőt szeretettel vár a Halasi Média és Kultúra Nonprofit Kft., a Sóstó Sporthorgász Egyesület, valamint a Halasi Mozi!

