Nézzék át a terveket - kéri a képviselő
Az „Élhető Kiskunhalas” TOP_PLUSZ pályázat keretében 1,2 milliárd forintos közterület fejlesztés elindítását tervezi az önkormányzat. Az új akcióterület a vasút és a Kertváros között húzódó városrészt érinti. Mindezek a felújítások jelentősen elősegítik Kiskunhalas új arculatának kialakítását. Vincze Attila önkormányzati képviselő körzetében nyolc olyan közterület található ahol felújítási munkálatok várhatók.
Nemrégiben Fülöp Róbert polgármester kezdeményezésére, lakossági fórumot tartottak a Közösségek Házában az „Élhető Kiskunhalas” TOP_PLUSZ pályázattal kapcsolatban.
Mint elhangzott, az érintett területek a következők lesznek:
• Kuruc sétány,
• Kuruc parkoló,
• Bocskai udvar,
• Kutyafuttató,
• Bem sétány,
• Bercsényi udvar,
• Thorma tér,
• Gimnázium utca,
• Bethlen Gábor tér,
• Szövetség tér,
• Dr. Nagy Mór parkoló,
• Dob utca,
• Erzsébet királyné tér,
• Karacs Teréz utca.
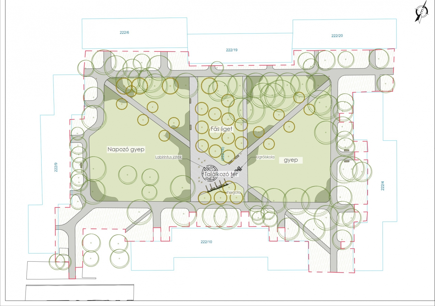
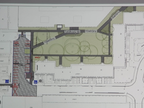
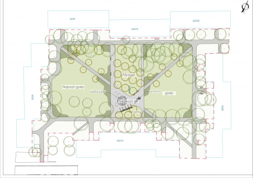
A komplex fejlesztések keretében parkosítanak, sétányokat építenek, burkolatokat cserélnek a szakemberek. A fásítások mellett nyilvános illemhely kialakítása is tervben van. Az előzetes tervek szerint kamerarendszert telepítenek, játszótér felújítást végeznek és megoldják a csapadékvíz okozta problémákat.
Vincze Attila önkormányzati képviselő körzetében összesen nyolc területet érint majd a tervezett beruházás. A képviselő úgy gondolja, ezt a pályázatot közel kell vinni az emberekhez, informálni kell az érintetteket a tervekről, elképzelésekről.
Vincze Attila úgy tervezi, hogy az összes lakóközösség megkapja a tervrajzokat, ezek kifüggesztését meg is kezdte a lépcsőházakban.
A képviselő arra kéri a lakókat, hogy nézzék át a terveket, ha kérdésük, észrevételük van, akkor azt még időben juttassák el hozzá. A képviselővel készített interjút a Halas Televízió 19-órakor kezdődő műsorában láthatják.

